Apartamento Pocitos, ref: 237620

Estrene a 2 de rambla garaje piscina

Alquiler Mensual $ 44.000

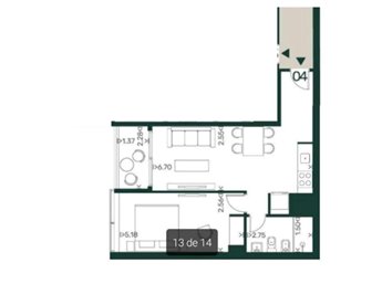
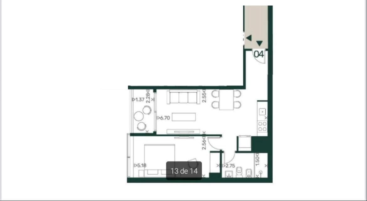
1 DORM1 BAÑO44 m² SUP.44 m² EDIF.1 GarajeGastos comunes $ 4.000
Garage1 PlantasParrilleroAño 2025KichennettePiscinaAl FrenteProp. HorizontalTerrazaPiso 8Estado: A EstrenarVigilanciaVistaPlacaresPorteroCalefacción: Aire A. SplitMascotasGimnasio
Aviso vigente octubre 2025

Jardín Castellanos es una torre única de 15 pisos en el corazón de Pocitos que contará con 56 unidades de 1 y 2 dormitorios, planta baja y 2 subsuelos de garajes.
Se encuentra en una ubicación privilegiada, ubicado en una de las zonas más emblemáticas del barrio, a pasos de Bulevar España y cerca de la Rambla. Los residentes podrán disfrutar del gran área comercial de la zona con restaurantes, comercios, tiendas, y su gran conectividad y accesibilidad con el resto de Montevideo.

Con una orientación al frente, todos los ambientes de las unidades contarán con una iluminación ejemplar de entrada directa del sol por las tardes.

Alquiler Apartamento a Estrenar – Pocitos, Montevideo

Apartamento a estrenar a 2 cuadras de la Rambla de Pocitos y la playa.
•Piso 8 vista despejada
•Living comedor terraza al frente cocina integrada
•1 dormitorio luminoso icluye cortinas
•1 garaje incluido en el precio tipologia amplio camioneta
•Edificio con vigilancia 24 hs sauna- gym-laundry-salón de fiestas y piscina

Ubicación privilegiada, a pasos de la playa y todos los servicios
Ocupación inmediata
Garantía: Aseguradora
* Las superficies de los apartamentos incluyen muros divisorios hasta su eje, ductos, terrazas, balcones, prorrateo de área común, circulación vertical exclusivamente de planta.

* Todas las medidas enunciadas son meramente orientativas, las medidas exactas serán las que se expresen en el respectivo título de propiedad de cada inmueble. Todas las fotos, imagenes y videos son meramente ilustrativos y no contractuales. Los precios enunciados son meramente orientativos y no contractuales.

Contacto

Chat